Котёл на пеллетах с автоматической подачей «Валдай ВС» 15-50 кВт
Котлы «Валдай» производства ООО «Общемаш» имеют декларацию ЕАС
Котлы «Валдай» предназначены для теплоснабжения (отопления) индивидуальных жилых домов, зданий коммунально-бытового назначения, оборудованных системой водяного отопления.
Котлы «Валдай» имеют уникальный водотрубный теплообменник, проектируемый изначально для использования пеллет и отвечающий следующим требованиям:
- легкость очистки;
- минимальные отложения золы на поверхностях теплообменника;
- высокий КПД – при работе на дровах 76%, при работе на пеллетах 90%;
- удобство эксплуатации.
Пеллетный котёл оснащён горелкой типа ВС, имеющей систему механической автоочистки и внутренний шнек для равномерной подачи пеллет. А так же возможности дистанционного контроля и управления, посредством GSM и WI-FI модулей в её блоке управления.
Так же блок управления горелкой обеспечивает автоматическое управление процессом:
- поддержание температуры воды на входе в котел (to – температура «обратки»);
- поддержание температуры воздуха в помещении с сигналом от внешнего датчика-реле температуры;
- работа котла в режиме старт-стоп;
- работа котла на дровах;
- управление циркуляционным насосом системы отопления;
- дистанционное управление котлом посредством SMS / Wi-Fi;
- защита котла от перегрева по датчику температуры на выходе из котла.
Комплект поставки
- Котёл водогрейный Валдай;
- Пеллетная горелка с системой механической очисткой колосников горелки;
- Бункер для пеллет (на выбор: без бункера или бункер объемом 270, 420, или 600 литров);
- Шнековый податчик пеллет;
- Гибкий трубопровод для подачи пеллет из бункера в горелку;
- Блок управления автоматикой (с встроенным GSM/Wi-Fi модулем);
- Мелкие комплектующие горелки (гофротруба подачи пеллет из шнека в горелку, датчики температуры, комплект проводов, теплоизолирующие муфты и др.);
- Совок, скребок, регулятор тяги;
- Руководство по эксплуатации и технический паспорт на котел.
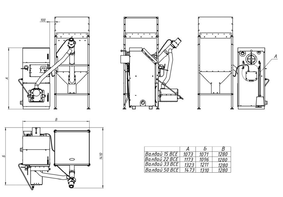
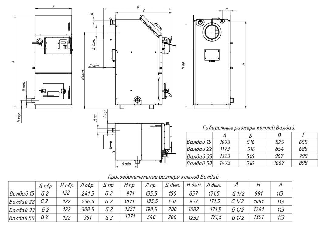
Технические характеристики
ТЕХНИЧЕСКИЕ ХАРАКТЕРИСТИКИ КОТЛОВ «Валдай ВС»
| Наименование параметра | Валдай-15ВС | Валдай-22ВС | Валдай-33ВС | Валдай-50ВС | ||||
| Вид используемого топлива: — основное топливо — резервное топливо | — древесные пеллеты, пеллеты из подсолнечника, — дрова (влажность не более 35%), брикеты, уголь | |||||||
| Пеллетная горелка | ВС4/35Е | ВС10/50Е | ||||||
| Тепловая мощность горелки (регулируемая) кВт | 4…35 | 10..50 | ||||||
| Напряжение питания, В | 220 | |||||||
| Потребляемая электрическая мощность (не более), Вт | на режиме розжига – не более 600, на рабочем режиме – не более 100 | |||||||
| Габариты горелки ВхШхД, мм | 481х365х538 | 481х365х590 | ||||||
| Вес горелки, кг | 25 | |||||||
| Габариты бункера с податчиком пеллет ШхДхВ, мм | 660х1094х1407 | 660х1094х1766 | ||||||
| Вес бункера с податчиков пеллет, кг | 52 | 75 | ||||||
| Емкость бункера, л | 270 | 420 | ||||||
| Номинальная тепловая мощность котла, кВт | 15 | 22 | 33 | 50 | ||||
| Диапазон регулирования мощности, кВ | 4-15 | 4-22 | 4-33 | 10-50 | ||||
| КПД, %, не менее: — при работе на дровах, — при работе на пеллетах | 76 90 | 76 90 | 76 90 | |||||
| Тип теплоносителя | Вода | |||||||
| Максимальное гидравлическое сопротивление в котле, мбар (Па) | 1,3(130) | 2,1(210) | 2,6(260) | |||||
| Объем воды в теплообменнике аппарата, л | 51 | 54 | 60 | 80 | ||||
| Максимальное допустимое рабочее давление, бар | 1,5 | 1,5 | 1,5 | |||||
| Требуемое разрежение за котлом, мбар (Па): — при работе на пеллетах, — при работе на дровах | 0,08 (8) 0,15 (15) | 0,1 (10) 0,2 (20) | 0,1 (10) 0,2 (20) | 0,12 (12) 0,25 (25) | ||||
| Размер патрубков подключения теплоносителя, «резьба» | G2 ̎ | G2 ̎ | G2 ̎ | |||||
| Способ очистки колосника горелки | механический | |||||||
| Требуемый диаметр дымохода, мм | 150 | 150 | 200 | |||||
| Масса котла, не более, кг | 210 | 230 | 295 | 380 | ||||
| Максимальная длина сжигаемых поленьев, мм | 350 | 350 | 350 | 350 | ||||
| Назначенный срок службы | Не менее 15 лет | |||||||


