Комбинированные котлы Валдай ТМА 75-200 кВт
Котлы твердотопливные типа «Валдай ТМА» предназначены для теплоснабжения (отопления) индивидуальных жилых домов, зданий коммунально-бытового назначения, оборудованных системой водяного отопления.
Принцип действия котлов основан на нагреве воды в теплообменнике теплом, выделенным при сжигании твердого топлива (дрова, брикеты древесные, пеллеты).
Котлы оснащены горелкой, имеющей систему пневматической очистки, а также возможностью дистанционного контроля и управления, посредством GSM и WI-FI модулей в блоке управления
Котлы состоят из следующих основных узлов:
- топочная камера;
- пеллетная горелка в комплекте с бункером и блоком управления;
- теплообменник;
- дверца топочной камеры;
- дверца зольника;
- две дверцы теплообменника;
- зольный ящик;
- декоративная обшивка.
Теплообменник представляет собой стальную конструкцию, передающую энергию продуктов сгорания воде, циркулирующей внутри теплообменника. Подвод воды в теплообменник осуществляется через впускной патрубок, выход воды – через выпускной патрубок. Между теплообменником и декоративной обшивкой котла установлена теплоизоляция.
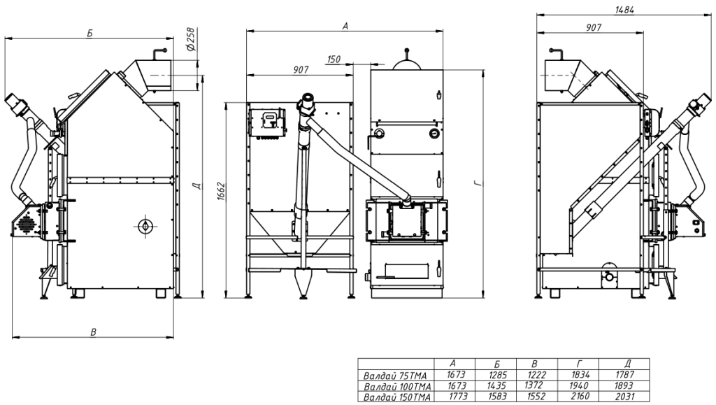
Габаритные размеры котлов Валдай ТМА 75, 100 и 150 кВт с горелкой РВ и бункером
Габаритные размеры котлов Валдай ТМА 75, 100 и 150 кВт с горелкой РВ и бункером

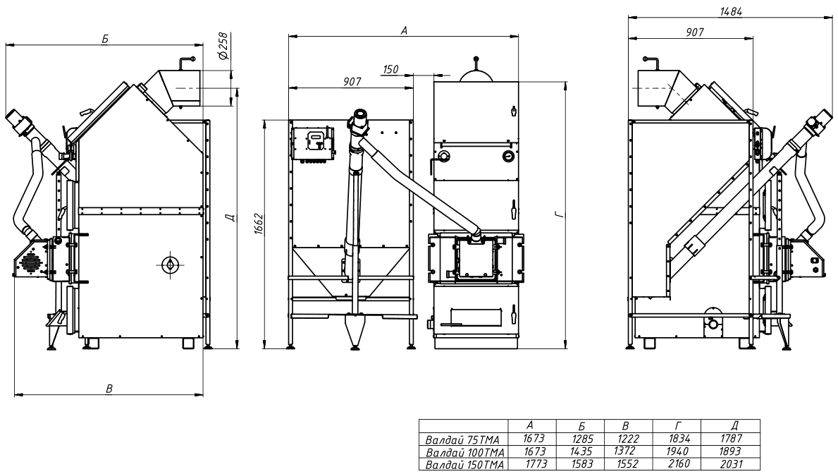
Габаритные размеры котла Валдай 200ТМА с горелкой РВ и бункером
Габаритные размеры котла Валдай 200ТМА с горелкой РВ и бункером

Технические характеристики
Технические характеристики
| Наименование параметра | Валдай 75ТМА | Валдай 100ТМА | Валдай 150ТМА | Валдай 200ТМА |
| Вид используемого топлива: | Пеллеты, дрова, брикеты древесные | |||
| Номинальная тепловая мощность, кВт | 75 | 100 | 150 | 200 |
| Диапазон регулирования мощности, кВт | 20-75 | 20-100 | 30-150 | 40-200 |
| КПД, %, не менее | 90*, 76 | |||
| Объем воды в теплообменнике аппарата, л | 110 | 145 | 190 | 320 |
| Максимальное допустимое рабочее давление, бар | 2 | |||
| Требуемое разрежение за котлом, Па | 30(20*) | 40(30*) | ||
| Размер патрубков подключения, «резьба» | 2 ̎ | |||
| Требуемый диаметр дымохода, мм | 250 | |||
| Тип пеллетной горелки | РВ20/100МЕ | РВ30/ 150МЕ | РВ40/ 200МЕ | |
* При работе на пеллетах
