Комбинированные котлы Валдай К
Котлы комбинированные типа «Валдай К» предназначены для теплоснабжения (отопления) индивидуальных жилых домов, зданий коммунально-бытового назначения, оборудованных системой водяного отопления.
Принцип действия котлов основан на нагреве воды в теплообменнике теплом, выделенным при сжигании твердого топлива (дрова, брикеты древесные, пеллеты).
Котлы оснащены горелкой, имеющей систему механической очистки, а также возможностью дистанционного контроля и управления, посредством GSM и WI-FI модулей в блоке управления.
Теплообменник представляет собой стальную конструкцию, передающую энергию продуктов сгорания воде, циркулирующей внутри теплообменника. Подвод воды в теплообменник осуществляется через впускной патрубок, выход воды – через выпускной патрубок. Между теплообменником и декоративной обшивкой котла установлена теплоизоляция.
Колосник котла выполнен в виде ряда охлаждаемых труб, являющихся частью теплообменника, и расположен выше уровня горелки. Подобная конструкция позволяет использовать в качестве топлива дрова, не демонтируя горелку.
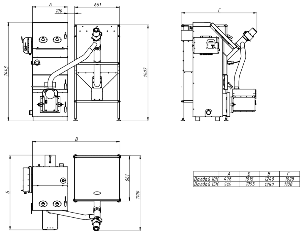
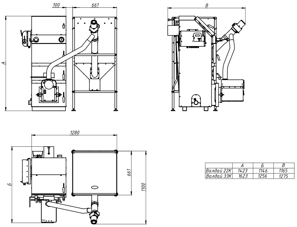
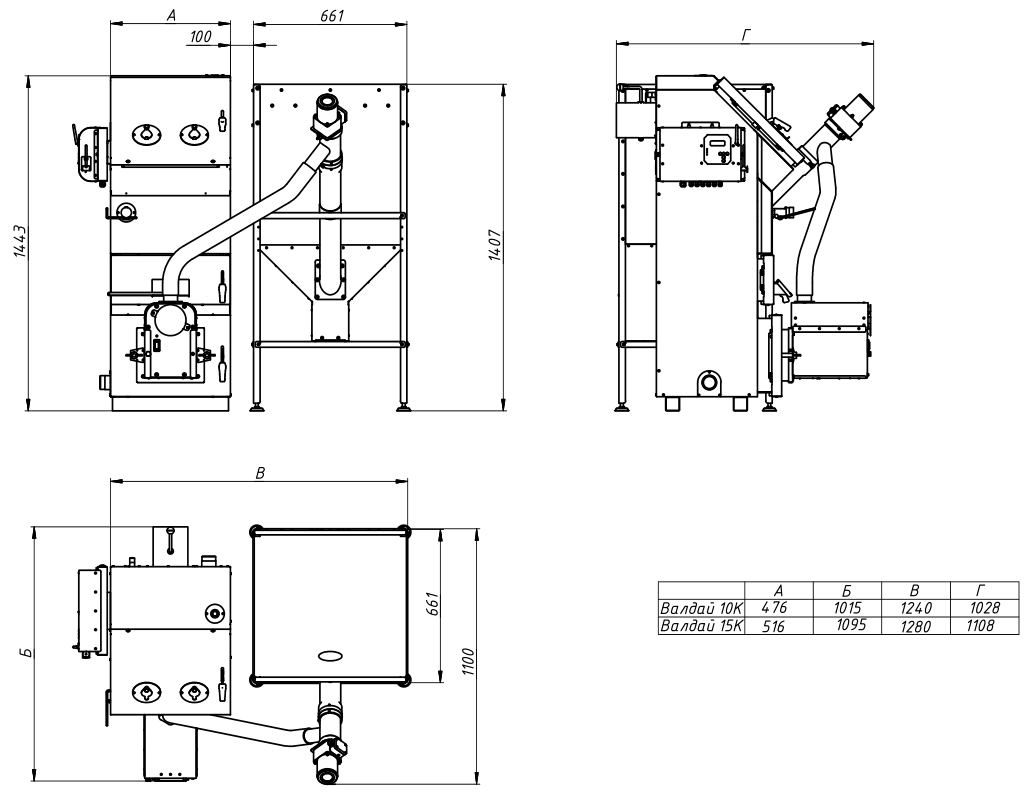
Габаритные и присоединительные размеры котлов Валдай К 10, 15, 22 и 33 кВт с горелкой и блоком управления.
Габаритные и присоединительные размеры котлов Валдай К 10, 15, 22 и 33 кВт с горелкой и блоком управления.


Технические характеристики
Технические характеристики
| Наименование параметра | Валдай 10К | Валдай 15К | Валдай 22К | Валдай 33К |
| Вид используемого топлива: | Пеллеты, дрова, брикеты древесные | |||
| Номинальная тепловая мощность, кВт | 10 | 15 | 22 | 33 |
| Диапазон регулирования мощности, кВт | 4-10 | 4-15 | 4-22 | 4-33 |
| КПД, %, не менее | 90*, 76 | |||
| Максимальное допустимое рабочее давление, бар | 1,5 | |||
| Требуемое разрежение за котлом, Па | 15(8*) | 20(10*) | ||
| Размер патрубков подключения, «резьба» | 2 ̎ | |||
| Требуемый диаметр дымохода, мм | 200 | |||
| Тип пеллетной горелки | ВС4/35Е | |||
* При работе на пеллетах
